4 BHK Town Home For Sale At Tata Avenida | Fully Furnished 4030 Sq Ft | ₹ 5.24 Cr

By Tata Housing

Price : INR 5,24,00,000
Plot No. II, G/7,, Dorabji Tata Road, AA II, New Town, kolkata, West Bengal - 700160

Project Overview

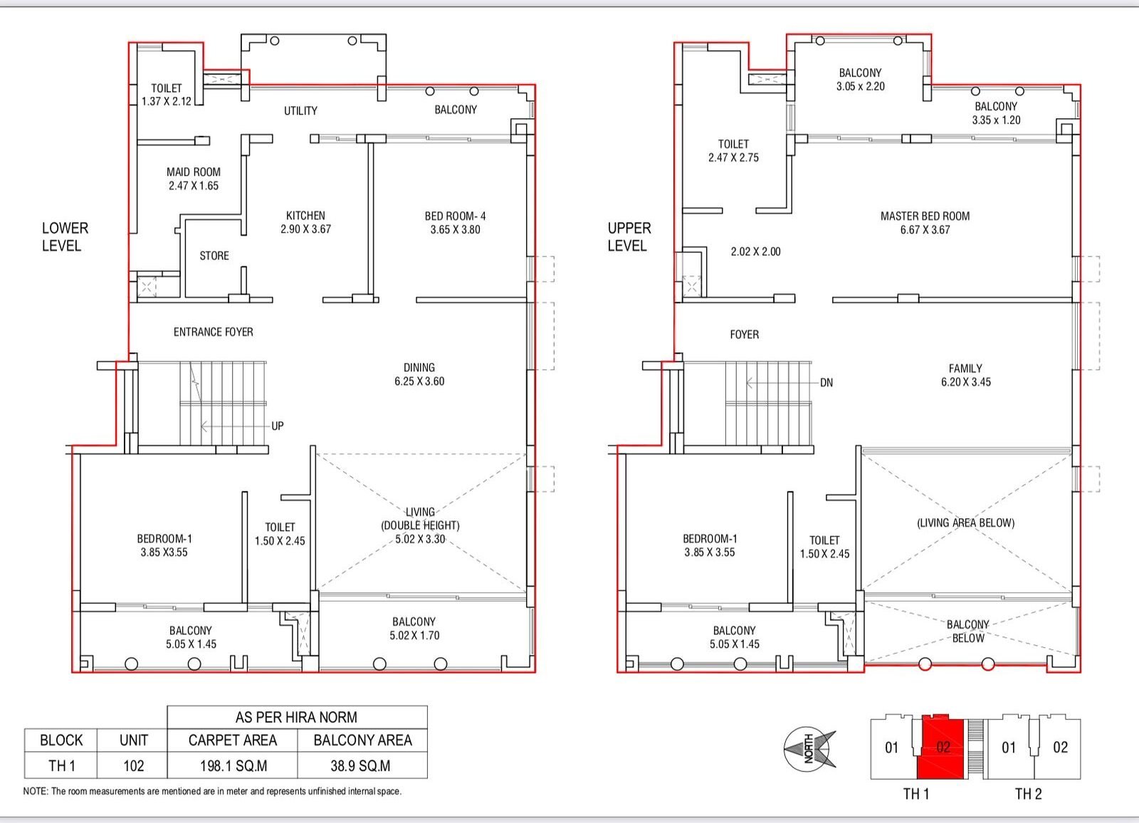
Premium 4 BHK Townhome Living at Tata Avenida

Discover refined luxury, generous space, and ready-to-move comfort with this exclusive 4 BHK Town home For Sale At Tata Avenida. Designed for discerning homeowners, this beautifully maintained townhome blends modern architecture with practical living. Every detail reflects thoughtful planning and premium finishes.

Spacious Layout With Elegant Design

This townhome offers 4030 sq ft of super built up area, making it ideal for large families or those who value space. The layout includes four large bedrooms, each with an attached bathroom and a private balcony. Natural light fills every room. Ventilation remains excellent throughout the home.

The living and dining area feels expansive and welcoming. It is perfect for family gatherings and formal entertaining. A separate kitchen and pantry ensure convenience and efficiency. The servant quarter adds privacy and functionality.

An open backyard enhances the charm of this home. It offers a private outdoor retreat for relaxation or social evenings.

This 4 BHK Town home For Sale At Tata Avenida balances openness with privacy in every corner.

Fully Furnished With Premium Inclusions

The home comes fully furnished, exactly as it stands. All furniture, fittings, and appliances are included in the price.

Bedroom & Storage Features

  • Three king-size beds with mattresses

  • Wardrobes in three bedrooms

  • Three dressing tables

  • One almirah in the servant quarter

Living & Dining Comfort

  • Two premium leather sofa sets

  • One elegant chandelier

  • One marble-top dining table with six chairs

  • Two crockery units

  • One big wooden rocking chair

  • One swing placed in the balcony

Electronics & Appliances

  • Seven air conditioners (1.5-ton each)

  • All remote-controlled fans

  • One television with two TV cabinets

  • 700-litre side-by-side double-door refrigerator

  • Microwave oven

  • Washing machine

Kitchen & Utility

  • Gas stove

  • Chimney

  • Aqua guard hot and cold water purifier

Additional Highlights

  • All light fittings installed

  • Balcony chairs (six) with two tables

This 4 BHK Town home For Sale At Tata Avenida allows you to move in without any extra investment.

Parking, Legal Status, and Practical Benefits

The property includes two covered garage spaces, suitable for large cars. This is a rare advantage in townhome living.

Mutation is already done, ensuring peace of mind for buyers. The documentation is clear.

Every aspect supports a smooth and confident purchase decision.

Location Advantage and Lifestyle

Tata Avenida is known for its planned infrastructure and serene environment. The project offers excellent connectivity to major business hubs, schools, hospitals, and shopping destinations in New Town. Wide internal roads, landscaped surroundings, and a secure gated community enhance daily living.

This 4 BHK Town home For Sale At Tata Avenida suits buyers looking for luxury with long-term value.

Pricing and Investment Value

The asking price is ₹13,000 per sq ft. Considering the size, furnishings, parking, and location, this property presents strong value. Fully furnished townhomes of this scale are limited in availability.

This home works equally well as a self-use residence or a premium investment asset.

Why This Home Stands Out

  • Large 4030 sq ft layout

  • Four bedrooms with four balconies

  • Fully furnished, move-in ready

  • Open backyard and servant quarter

  • Two large car garages

  • Clear legal status

If you seek space, comfort, and a refined lifestyle, this 4 BHK Town home For Sale At Tata Avenida deserves your attention.

📍 Visit Our Website | 📞 Call +919836547777 | 📅 Book a Site Visit Today



  • Possession Date: 27/11/2016
  • Configuration: 4 BHK
  • Super Buildup Area: 4030 Sqft
  • No of block: 6
  • Floor: Ground Floor

Video

  • 250+

  • 4 BHK Town Home For Sale At Tata Avenida | Fully Furnished 4030 Sq Ft | ₹ 5.24 Cr

    Tell us how we can guide you.